• Client
    Lovago BV
  • Locatie
    Dam, Middelburg
  • Periode
    2024-2025
  • Herman Heijboer
    Herman Heijboer
    Projectontwikkelaar
    Rubben Tack
    Herman Heijboer
    Projecttekenaar
    Izaak Wondergem
    Izaak Wondergem
    Projectbegeleider

De Groote en Kleine Christoffel

Wie in Middelburg over het Damplein loopt, ontkomt niet aan het statuur van dit prachtige herenhuis. Het monument is gebouwd in 1840, goed onderhouden en staat op een centrale locatie in Middelburg. Het pand staat in Middelburg bekend als De Groote en Kleine Christoffel. Dat geeft al aan dat het pand belangrijk is voor de uitstraling en identiteit van de binnenstad.

Daarom benaderen we dit project met zorg. Aan het pand zelf gaan we niet veel doen, maar aan de achterkant van het monument uit 1840 staan verschillende aanbouwen en een parkeerterrein met enkele monumentale aspecten. Het is aan ons om deze verzameling van bebouwing te herstructureren, en dat is een behoorlijke klus.

Momenteel bestaat het vastgoed namelijk uit een monument aan de voorkant; dit is het meest zichtbare onderdeel van het project. Aangrenzend aan dit pand zijn kantoren gebouwd met een monumentale gevel aan de zijkant en er is een parkeerterrein met een monumentale muur erop.
 

Monumentaal

Het monument is gebouwd in 1840, goed onderhouden en staat op een centrale locatie in Middelburg. Het pand staat in Middelburg bekend als De Groote en Kleine Christoffel. Let op dat 'Groote' hier is gespeld op de klassiek Nederlandse manier. Dat geeft al aan dat het pand belangrijk is voor de uitstraling en identiteit van de binnenstad. Op de foto zie je de herenzaal op de begane grond met uitzicht over de Dam.

Herenzaal

Wat gaan we precies doen?

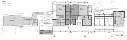
Het monument wordt gesplitst in twee woningen; daar leent het zich goed voor, want daarmee keert een gang terug die er vroeger ook stond. Voor de rest gebeurt er met het herenhuis aan de voorkant niets.

Wat nu kantoren zijn, moet worden gesloopt. Maar de monumentale gevel aan de Isabellasgang moet wel worden behouden. Deze wordt dan ook opnieuw opgenomen in het ontwerp. De monumentale muur blijft natuurlijk ook behouden en bakent straks een binnenplaatsje af.

Op de plek waar nu de kantoren staan, komen straks 7 appartementen. Daarmee creëren we meer woonruimte in de binnenstad. Bovendien verrijst er op de plaats van de parkeerplaats 4 garageboxen met nog eens 3 woningen erbovenop. Deze twee panden krijgen dezelfde stijl en worden daarmee één geheel.

Dit is echter erg lastig omdat de vloer niet overal gelijk loopt. De hoogte van de straat aan de Dam ligt gerust tweeënhalve meter boven de vloer van het parkeerveld aan de achterkant. Daarnaast loopt het pand in de breedte ook niet gelijk. Bovendien houdt sloop en nieuwbouw in dat materialen moeten worden versleept. En dat is in de binnenstad van Middelburg ook nog een hele klus!

Onze rol

Wij zijn verantwoordelijk voor de bouwtechnische uitwerking van de ontwerpen van Thys Gutberlet (hieronder). Onze tekenaar bedenkt, puzzelt, meet en berekent precies hoe hoog of laag, welke vloer, kozijn en balkon moeten komen. Bovendien gaan we nadenken welke materialen er moeten worden gebruikt en hoe we deze naar de bouwplaats gaan transporteren. Op de foto zie je een oude technische tekening van het pand.

 

Tekening

Uitdaging

Dit is echter erg lastig omdat de vloer niet overal gelijk loopt. De hoogte van de straat aan de Dam ligt gerust tweeënhalve meter boven de vloer van het parkeerveld aan de achterkant. Daarnaast loopt het pand in de breedte ook niet gelijk. Bovendien houdt sloop en nieuwbouw in dat materialen moeten worden versleept. En dat is in de binnenstad van Middelburg ook nog een hele klus!

schets